138 PETIR RD
- EM (Exec Maisonette)
ASKING PRICE:
$900,000
3
bed
3
bath
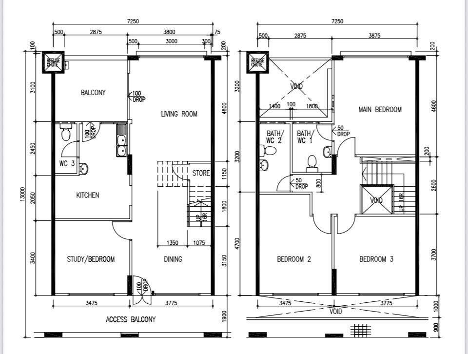
1,569
sqft
$573.61
psf
Details
Address:
Condition:
No furnishing
Tenure:
62 years
Floor Size:
1569 sqft / 146 sqm
Description
FOR SALE – Beautiful Minimalist Executive Maisonette (EM)
Discover this rare high ceiling, loft-like Executive Maisonette.
The balcony is very spacious and overlooks palm trees giving resort-like vibe.
A short block with only 2 levels (lift serving residents of the upper level only)
Key features:
Minimalist & Beautifully Maintained – move-in ready!
Quiet & Serene Environment
Near Pending LRT Station
Close to Bus Stops
Near Neighbourhood Schools (Bukit Panjang Primary and Zhenghua Primary School)
Near Bangkit Food Court & Market, shops and Giant Supermarket
Close to Petir Park
LIKE THIS PROPERTY?
Contact us to arrange a viewing today!
HOMESELLER SERVICES
Need to know more?
Check out our services below:
Sell my HDBSell my Condo















