52 Commonwealth Drive
- 4A
ASKING PRICE:
$1,028,000
3
bed
2
bath
1,023
sqft
$1004.89
psf
Details
Address:
52, Commonwealth Drive
Condition:
No furnishing
Tenure:
99 years
Floor Size:
1023 sqft / 95 sqm
Description
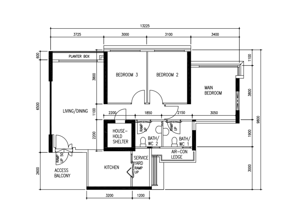
HDB Listing – 4 rm Model A
Floor space – 95 sqm,
S$ 1.028 Mil
- High Floor, above #09 floor
- Renovated 3 Beds 2 Baths, move-in ready
- Main door South East, Living room North West
- 3-min walk to Commonwealth MRT & childcare centre
- 5 min walk to 24h Sheng Siong supermarket, Tanglin Halt Market and Food Centre
- Sheltered linkway to MRT and carpark
- Close proximity to Holland Village, Holland Drive, Commonwealth Crescent Market & Food Centre
- Easy access to AYE, CTE and major expressways
- Good accessibility to Town by MRT (15 min) and many bus services (20 min)
- Near Queenstown Primary and Secondary Schools, New Town Primary School
- Extension needed & Submission (7 – 30 days).
LIKE THIS PROPERTY?
Contact us to arrange a viewing today!
HOMESELLER SERVICES
Need to know more?
Check out our services below:
Sell my HDBSell my Condo












