897B WOODLANDS DR 50
- 4A
ASKING PRICE:
$540,000
Details
Description
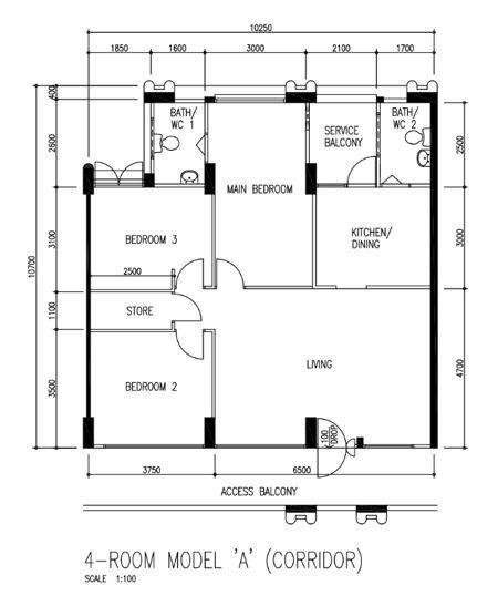
HDB 4-room Flat, Greenery View, North-South Orientation, No West Sun, Serious Seller
• TOP 1997
• 3 Bed 2 Bath (1076 sqft)
• Bright and Windy
• Greenery View
• Above #02 floor
• North-South Orientation
• No West Sun
• Regular layout
• No odd shape
• Living Room faces South
• Main Door faces South
• Do not need Extension
• Quiet Environment
• Household: Chinese
• Only Chinese are Eligible
This 4-room unit has a practical layout and a great sense of space, making it perfect for family living. The owners have kept it in excellent condition — clean and comfortable. It’s just about a five-minute walk to Woodlands MRT station, and with the Woodlands Integrated Transport Hub, traveling to the city or anywhere in Singapore is a breeze. Daily amenities are right at your doorstep, with shopping malls like Causeway Point and 888 Plaza offering endless options for dining, shopping, and entertainment. For families with children, the education choices here are excellent. Nearby, you’ll find Woodlands Primary, Woodgrove Primary, several secondary schools, and Republic Poly — providing a complete learning environment for your child’s growth. Nature lovers will also be delighted. Admiralty Park and Woodlands Waterfront Park are both nearby, perfect for walks, jogging, or family outings to enjoy the outdoors.
=====
We help owners sell their HDB @$1999, Condo @$4999 & Landed @$9,999 fixed commission
LIKE THIS PROPERTY?
Contact us to arrange a viewing today!
HOMESELLER SERVICES
Need to know more?
Check out our services below:
Sell my HDBSell my Condo













