Blk 308 YISHUN RING ROAD
- 5A
ASKING PRICE:
$700,000
4
bed
2
bath
1,313
sqft
$533.13
psf
Details
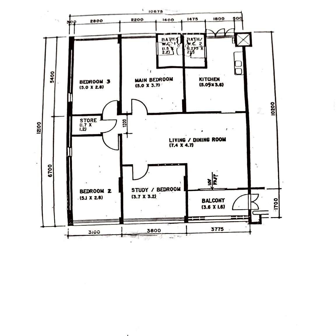
Address:
Condition:
No furnishing
Tenure:
99 years
Floor Size:
1313 sqft / 122 sqm
Description
===============
High Floor, Well Maintained Condition, Serious Seller
===============
- Lease Start Date: Jun 1988
- 4 Bed 2 Bath (1,313 sqft)
- Move-In Condition Unit
- Above #13 floor
- NS Orientation
- High Floor
- Regular layout
- No odd shape
- Main door faces Southwest
- Living faces Northwest
- Corner Unit
- Bright & Breezy
- No Contra
- Need 3 Months Extension of Stay
- Near to Junction Nine, Northpoint Shopping Mall, Yishun MRT Station, Sheng Siong Supermarket, SAFRA Yishun, Yishun Park Hawker Centre, Yishun Park, Community Club, Polyclinic, Coffeeshop and other shops available
=====
We help owners sell their HDB @$1999, Condo @$4999 & Landed @$9,999 fixed commission
LIKE THIS PROPERTY?
Contact us to arrange a viewing today!
HOMESELLER SERVICES
Need to know more?
Check out our services below:
Sell my HDBSell my Condo















