Blk 405 WOODLANDS ST 41
- EA (Exec Apartment)
ASKING PRICE:
$1,060,000
4
bed
2
bath
1,894
sqft
$559.66
psf
Details
Address:
Condition:
No furnishing
Tenure:
99 years
Floor Size:
1894 sqft / 176 sqm
Description
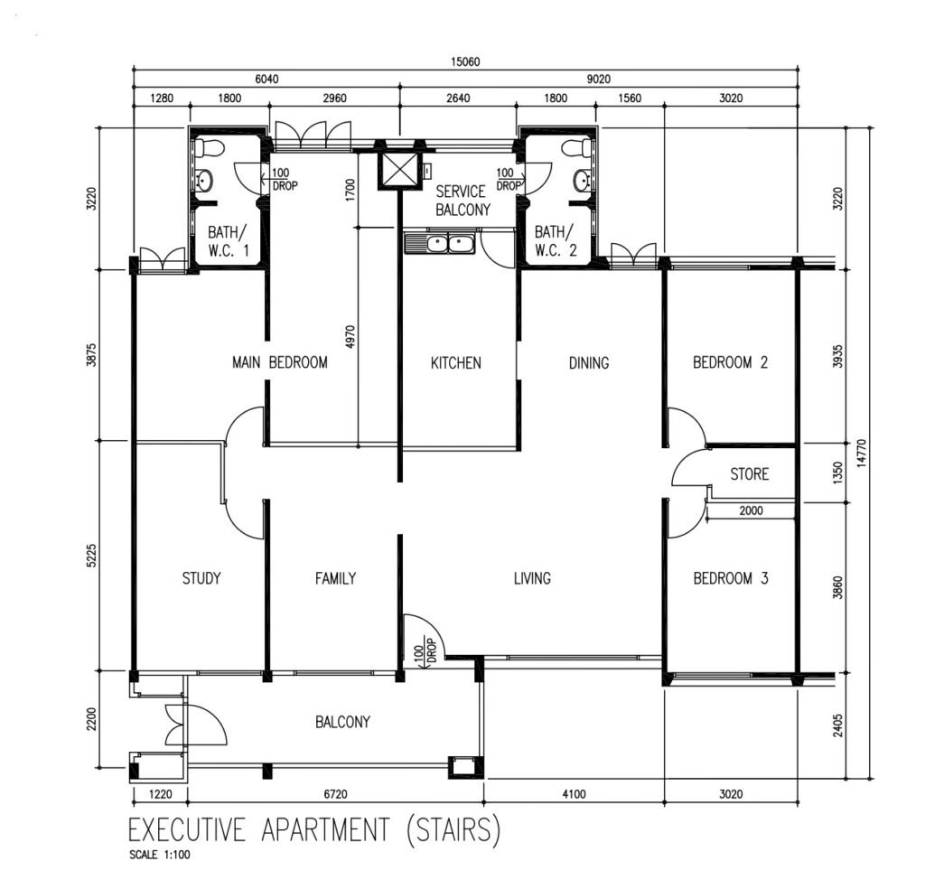
Massive 1,894 sqft Jumbo @ Woodlands | High-floor Corner | Renovated | Walk to MRT | From $1.06m
Units Details
• Jumbo HDB
• Built in 1995
• 1,894 sqft (Very Rare & Huge Layout)
• High floor, Corner unit
• Renovated & well-maintained
• Move-in ready
• Main door – West facing
• Living – South facing
• Ethnic quota : Open to all races (as of Jan)
• Extension required
• Contra required
Location & Amenities
- Walking distance to Marsiling MRT
- Walking distance to Singapore American School
- Fast access to BKE
- Quick drive to Woodlands Checkpoint
- Close to shops, markets, eateries & amenities
=====
We help owners sell their HDB @$1999, Condo @$4999 & Landed @$9999 fixed commission
LIKE THIS PROPERTY?
Contact us to arrange a viewing today!
HOMESELLER SERVICES
Need to know more?
Check out our services below:
Sell my HDBSell my Condo



















