Blk 641 Yishun Street 61
- 4A
ASKING PRICE:
$550,000
Details
Description
===============
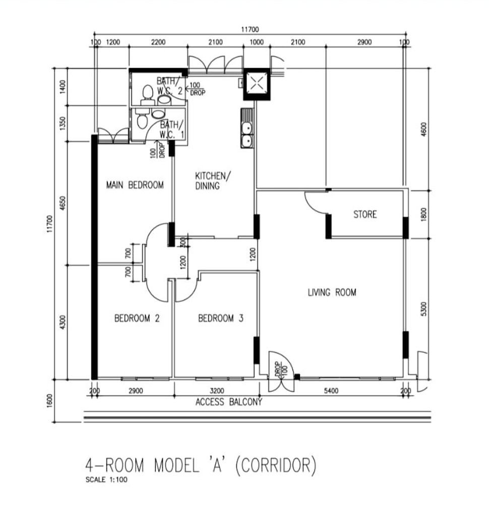
HDB 4-room flat, A Model, High Floor, Serious Seller
===============
• Lease Start Date: May 1992
• 3 Bed 2 Bath (1,130 sqft)
• Redesign Interior To Your Own Style
• Above #10 floor
• NS Orientation
• High Floor
• Regular layout
• No odd shape
• Main door faces Northwest
• Living faces Northwest
• Corridor Unit
• Contra to be Discuss
• Need 3 Months Extension of Stay
• Walking distance to Wisteria Mall, Nee Soon Sports Centre, SAFRA Yishun, Macdonald, Yishun Park,
Yishun Park Hawker Centre, NTUC Finest and Sheng Siong Supermarket and many other shops available
=====
We help owners sell their HDB @$1999, Condo @$4999 & Landed @$9,999 fixed commission
LIKE THIS PROPERTY?
Contact us to arrange a viewing today!
HOMESELLER SERVICES
Need to know more?
Check out our services below:
Sell my HDBSell my Condo










