[High Park Residences] 25 Fernvale Rd
- Condominium
ASKING PRICE:
$2,250,000
5
bed
3
bath
1,400
sqft
$1607.14
psf
Details
Address:
[High Park Residences] 25 Fernvale Rd
Condition:
No furnishing
Tenure:
99 years
Floor Size:
1400 sqft / 130 sqm
Description
===============
Unblocked View, Very High Floor, No Extension
===============
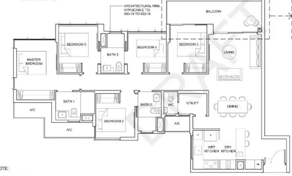
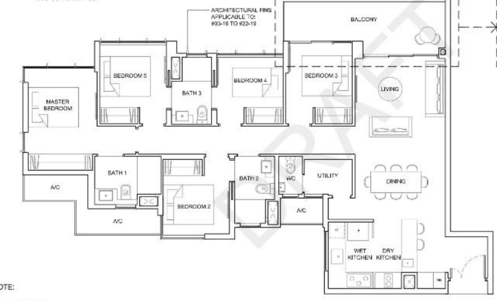
5 bedroom (1400sf)
Unblocked View
Partial sea view
High floor above #18
Well Maintained
Enclosed Kitchen
Regular layout
No odd shape
Main door faces South
Balcony faces North
No Extension
=====
We help owners sell HDB for $1999, Condo $4999, Landed $9999 fixed commission
=====
LIKE THIS PROPERTY?
Contact us to arrange a viewing today!
HOMESELLER SERVICES
Need to know more?
Check out our services below:
Sell my HDBSell my Condo

















