[Ris Grandeur] 31 Elias Road
- Condominium
ASKING PRICE:
$1,900,000
3
bed
3
bath
1,356
sqft
$1401.18
psf
Details
Address:
Condition:
No furnishing
Tenure:
years
Floor Size:
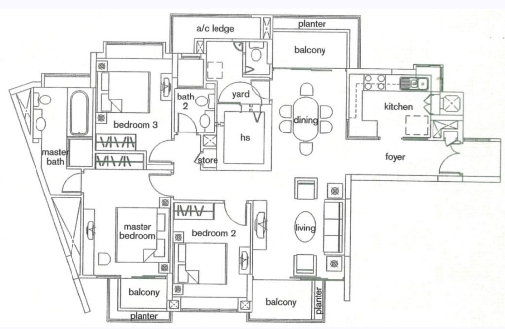
1356 sqft / 126 sqm
Description
Only Freehold Condo in Pasir Ris, Price to Sell, Serious Seller
===============
• TOP 2005
• Freehold
• 3 Bed 3 Bath (1,356 sqft)
• Rare Stack
• Well Maintained Unit
• Move-In Condition
• High Floor
• Unblock View
• NS Orientation
• Efficient Layout
• Regular Shape
• Has Balcony
• Corner Unit
• Main door faces West
• Living faces South
• Well Maintained Common Area
• Maintenance Fee est. $365.35 p/mth
- Normal Selling Timeline
• Within 1km to Park View Pri Sch, Meridian Pri Sch, Elias Park Pri Sch
• Near to Future Tampines North MRT Station, Parktown Residence Mall, Many Supermarket Surrounding, White Sand, Pasir Ris Mall, Elias Mall, Downtown East, Pasir Ris Park, Restaurants, Coffeeshops and other shops available
=====
We help owners sell their HDB @$1999, Condo @$4999 & Landed @$9999 fixed commission
LIKE THIS PROPERTY?
Contact us to arrange a viewing today!
HOMESELLER SERVICES
Need to know more?
Check out our services below:
Sell my HDBSell my Condo

















